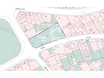
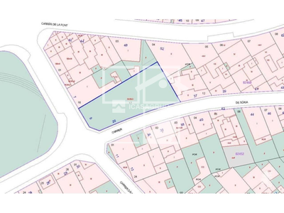
Venta de terreno en Calle SORIA Número 29 , Rubí Barcelona

Ref: VSB0008

Estado: Buen estado

Superfície: 537 m2

Habitaciones: 0

Baños: 0

Características

No se ha especificado ninguna característica

224.000 €

(537 m2 - 417,13 €/m2)

Descripción

¿Buscas un solar en Rubí? Aprovecha esta oportunidad. Ubicación inmejorable con mucha demanda de vivienda de obra nueva. A un paso de servicios, ocio y comercios. Tiene una superficie de 537m2 Según el planeamiento de la población, Plan General de Ordenación, el terreno está considerado como: Suelo Urbano Consolidado y le otorga la calificación de Zona residencial. Edificabilidad: 1062,40m2. Altura reguladora: Planta baja + Planta Primera + Planta Bajo Cubierta Posible proyecto: 4 Viviendas en planta baja + 8 dúplex en primera planta + 18 plazas de aparcamiento en planta sótano. Si estás interesado en saber más, ponte en contacto con nosotros . ¿Buscas un solar en Rubí? Aprovecha esta oportunidad. Ubicación inmejorable con mucha demanda de vivienda de obra nueva. A un paso de servicios, ocio y comercios. Tiene una superficie de 537m2 Según el planeamiento de la población, Plan General de Ordenación, el terreno está considerado como: Suelo Urbano Consolidado y le otorga la calificación de Zona residencial. Edificabilidad: 1062,40m2. Altura reguladora: Planta baja + Planta Primera + Planta Bajo Cubierta Posible proyecto: 4 Viviendas en planta baja + 8 dúplex en primera planta + 18 plazas de aparcamiento en planta sótano. Si estás interesado en saber más, ponte en contacto con nosotros .

Certificado energético

Consumo:
En proceso
Emisiones:
En proceso
Inmueble gestionado por:
ICASA GRUP