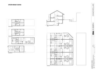
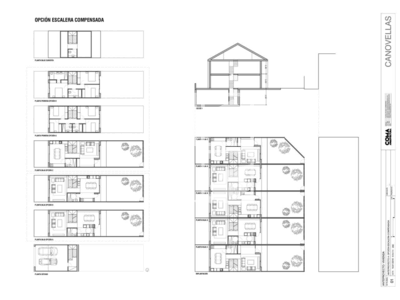
Venta de terreno en Avenida Canovelles Número 33 , Canovelles Barcelona

Ref: 000136

Estado: Buen estado

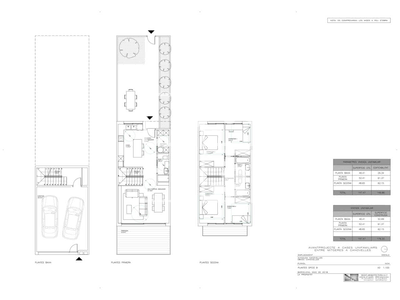
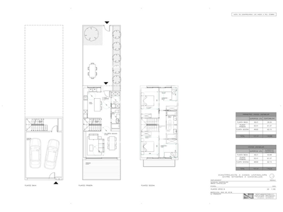
Superfície: 515 m2

Habitaciones: 0

Baños: 0

Características

Acceso minusválidos Aire acondicionado Amueblado Armarios Ascensor Balcón Calefacción Exterior Garaje Jardín Patio Piscina Terraza Trastero

300.000 €

(515 m2 - 582,52 €/m2)

Descripción

Superficie total 515 m², parcela superficie solar 515 m², ancho: 23 m. Superficie total 515 m², parcela superficie solar 515 m², ancho: 23 m.

Certificado energético

Consumo:
En proceso
Emisiones:
En proceso
Inmueble gestionado por:
BUSCASPISO