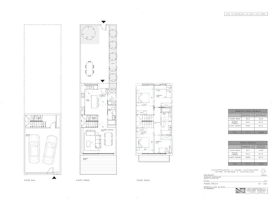
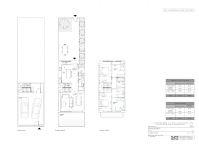
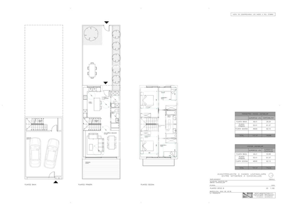
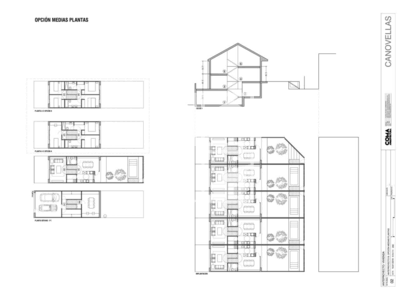
Venda de terreny en Avenida Canovelles Número 33 , Canovelles Barcelona

Ref: 000136

Estat: Bon estat

Superfície: 515 m2

Habitacions: 0

Banys: 0

Característiques

Accés per a minusvàlids Aire condicionat Moblat Armaris Amb ascensor Balcó Calefacció Exterior Garatge Jardí Pati Piscina Terrassa Traster

300.000 €

(515 m2 - 582,52 €/m2)

Certificat energètic

Consum:
En procés
Emissions:
En procés
Immoble gestionat per:
BUSCASPISO
Més immobles a Barcelona