Venta de casa en Cunit Tarragona

Ref: SS 2001/372 D8

Estado: A reformar

Superfície: 134 m2

Habitaciones: 5

Baños: 3

Características

Armarios Calefacción Garaje Jardín Patio Terraza Acceso minusválidos Aire acondicionado Amueblado Ascensor Balcón Exterior Piscina Trastero

239.000 €

(134 m2 - 1.783,58 €/m2)

Descripción

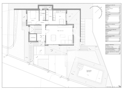
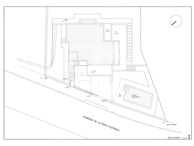
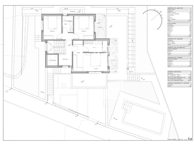
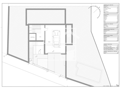
CASFINCAS Presenta: Casa adosada en tercera línea de playa, necesita reforma, zona Valparaiso (Cunit). Se trata de una vivienda de 134 metros cuadrados, (Av. Vilanova i la Geltrú) la cual se distribuye de la siguiente forma: A pie de calle tenemos el amplio garaje privado con capacidad para 2 turismos medianos, motos, etc. En planta principal dispone de gran salón-comedor con chimenea y salida a amplio patio orientación Sur con sol todo el día, cocina abierta, aseo de cortesía. En planta primera cuenta con 3 habitaciones dobles, una de ellas es suite con baño privado y salida a terraza, dispone de una estancia designada para hacer un baño en la distribución. En planta superior tenemos un estudio con salida a terraza que podría ser otra habitación auxiliar, además de otra habitación suite con baño privado. La casa dispone de instalación de gas natural, la ubicación es excelente, muy cerca de todo tipo de establecimientos y servicios y de la playa, así como del CAP (centro médico), gimnasio, bancos, etc. La vivienda necesita reforma. Gastos de ITP, escritura, registro, NO incluidos en el precio. CASFINCAS Presenta: Casa adosada en tercera línea de playa, necesita reforma, zona Valparaiso (Cunit). Se trata de una vivienda de 134 metros cuadrados, (Av. Vilanova i la Geltrú) la cual se distribuye de la siguiente forma: A pie de calle tenemos el amplio garaje privado con capacidad para 2 turismos medianos, motos, etc. En planta principal dispone de gran salón-comedor con chimenea y salida a amplio patio orientación Sur con sol todo el día, cocina abierta, aseo de cortesía. En planta primera cuenta con 3 habitaciones dobles, una de ellas es suite con baño privado y salida a terraza, dispone de una estancia designada para hacer un baño en la distribución. En planta superior tenemos un estudio con salida a terraza que podría ser otra habitación auxiliar, además de otra habitación suite con baño privado. La casa dispone de instalación de gas natural, la ubicación es excelente, muy cerca de todo tipo de establecimientos y servicios y de la playa, así como del CAP (centro médico), gimnasio, bancos, etc. La vivienda necesita reforma. Gastos de ITP, escritura, registro, NO incluidos en el precio.

Certificado energético

Consumo:
En proceso
Emisiones:
En proceso
Inmueble gestionado por:
CASFINCAS